Casa semindipendente in vendita

Verolengo, Via per Casale
€ 249.000
8 locali 8 locali
200 Mq 200 Mq
3 bagni 3 bagni

Casa semindipendente in vendita

Verolengo, Via per Casale

Descrizione annuncio

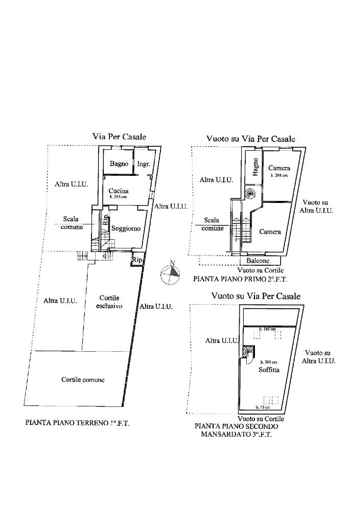
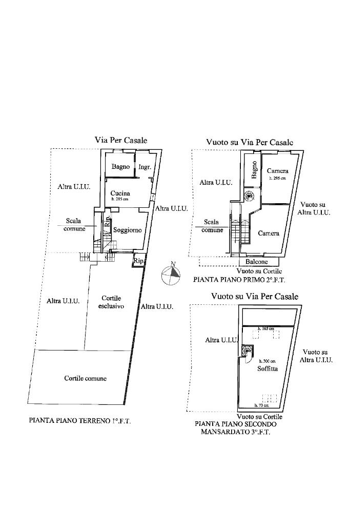
Nel cuore del comune di Verolengo, proponiamo in vendita una casa semindipendente bifamiliare di 200 mq, ideale per chi cerca spazio e comfort. Questa abitazione si sviluppa su più livelli, offrendo ampie possibilità di personalizzazione e utilizzo degli spazi.

Il piano terra è composto da ingresso, bagno con doccia, soggiorno, cucina abitabile, due camere da letto e una lavanderia.

Tramite una comoda scala interna si raggiunge il primo piano caratterizzato da due ulteriori camere da letto e un bagno con doccia.

Sullo stesso piano è presente un ulteriore appartamento bilocale in stato originario con bagno.

Una comoda scala a chiocciola accopagna nel sottotetto piastrellato dover poter ricavare ulteriore spazio

A completamento della proprieta un cortile esterno privato e depositi.

Mostra tutto

Nelle vicinanze

Trasporto pubblico Trasporto pubblico
Verolengo
Verolengo
410 m
stazione di Torrazza Piemonte
stazione di Torrazza Piemonte
2,5 Km
Verolengo (Scuola Elementare)
Verolengo (Scuola Elementare)
270 m
Verolengo (Piazza IV Novembre)
Verolengo (Piazza IV Novembre)
280 m
Ricariche auto elettriche Ricariche auto elettriche
San Sebastiano da Po Agnelli | EnelX
2,9 Km
Farmacia Farmacia
Farmacia
2,6 Km
Supermercati Supermercati
Borello Supermercati
2,9 Km
Negozi Negozi
Panificio Morgani
3,0 Km
Ristoranti Ristoranti
La bottega della pizza
2,5 Km
Chez Patrice
3,0 Km
Happy Days
3,0 Km
Mostra tutto

Caratteristiche

Rif.:
61188408
Piano:
2 (Piano su più livelli)
Posti auto:
1
Balconi:
1
Camere da letto:
5
Condizionamento:
Assente
Mostra tutto
Prezzo Prezzo
€ 249.000
Rata mutuo Rata mutuo
€ 1.177 / mese
Spese annue Spese annue
€ 0
Proponi il tuo prezzoProponi il tuo prezzo

Classe Energetica

G
G
G
G
G
G
G
G
G
EP invernale del fabbricato:
EP estiva del fabbricato:
Anno di costruzione:
1900
Riscaldamento:
Autonomo
Tipo impianto:
A radiatori
Tipo alimentazione:
Metano

Ti interessa visionare l'immobile?

Fissa un appuntamento  Fissa un appuntamento

Richiedi informazioni

Clicca su Leggi per aprire l'informativa
* Questi campi sono obbligatori

Calcola il tuo mutuo

Semplice e senza impegno
Anticipo

( % )
Mutuo

( % )

pochi semplici passi

inserisci i tuoi dati
Questionario completato
Grazie per aver richiesto un appuntamento senza impegno con un nostro Consulente del Credito e Assicurativo.

Hai inserito correttamente tutti i dati necessari e a breve riceverai una e-mail con un link da convalidare per inviare i tuoi dati.
Affiliato
Studio Emmea Sas
Via Torino, 21 10090 San Raffaele Cimena (TO)

Il nostro staff


  • Diego Buscieti
    Affiliato

  • Diego Bongiovanni
    Affiliato

  • Desirè Fogli
    Collaboratrice
Via Torino, 21 10090 San Raffaele Cimena (TO)
Zona: San Raffaele Cimena - Castagneto Po - San Sebastiano da Po - Casalborgone - Rivalba - Cinzano
Mostra su mappa
Orari: Lun-Ven 09.00/12.30 - 14.30/20.00 Sab 09.00/12.30 - 14.30/19.00
Affiliato
Studio Emmea Sas
Via Torino, 21 10090 San Raffaele Cimena (TO)

2026 Tecnocasa Franchising S.p.A. - P. IVA 08365160152 - Via Monte Bianco 60/A 20089 Rozzano (MI). Ogni agenzia ha un proprio titolare ed è autonoma. Privacy policy | Policy utilizzo | Cookie policy