Casa semindipendente in vendita

San Sebastiano Da Po, Via Navigliano
€ 119.000
5 locali 5 locali
170 Mq 170 Mq
3 bagni 3 bagni

Casa semindipendente in vendita

San Sebastiano Da Po, Via Navigliano

Descrizione annuncio

Nel cuore collinare di San Sebastiano da Po, in contesto di borgata tranquilla con vista, presentiamo soluzione con box auto completamente ristrutturata nel 2018. L'immobile è dotato di vespaio e oltre ad essere stato soggetto al rifacimento degli impianti elettrici, è stato curato anche nei suoi dettagli garantendo comfort: installazione di serrande elettriche, bagni nuovi, predisposizione per sistema di videosorveglianza, di antifurto volumetrico e di installazione delle pompe di calore.
La casa, oltre a disporre di un riscaldamento autonomo a radiatori con gas GPL, è accessoriata di pompe di calore che permettono sia di raffrescare che di riscaldare l'ambiente, consentendo di raggiungere una temperatura specifica per ogni stanza.
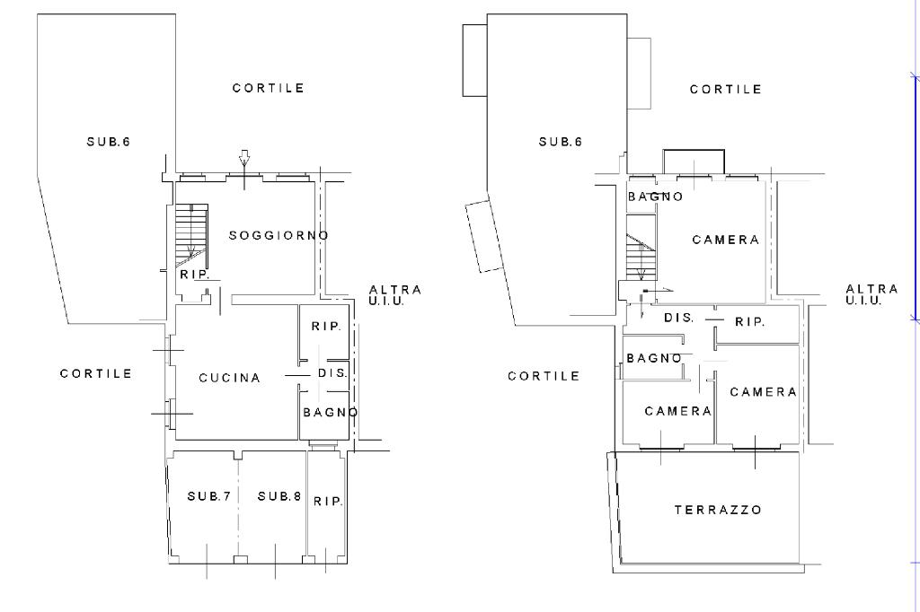
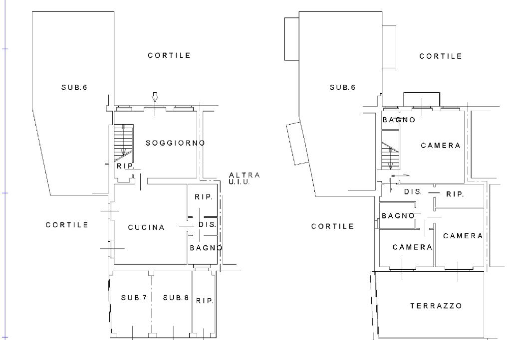
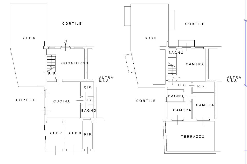
Varcata la soglia d'ingresso, al pian terreno si concentrano i due vani che caratterizzano il cuore pulsante della casa: un'ampia sala con camino e una cucina abitabile doppia. Il piano viene completato da un antibagno adibito a lavanderia e un bagno avente box doccia.
Il piano superiore comprende ben tre camere da letto e uno spazioso bagno con vasca servente al piano. La camera da letto padronale, oltre ad estendersi per una vasta metratura, viene completata da un balcone, da un bagno di servizio e da una cabina armadio completamente riservata. Le altre due stanze, invece, sono direttamente collegate al terrazzo di circa 30 metri quadrati con punto acqua, che riserva una visuale sulla pianura e sul verde collinare circostante.
La soluzione proposta è ideale per chi ama la natura e desidera vivere in un ambiente confortevole, senza rinunciare alla comodità e alla qualità degli spazi abitativi.

Mostra tutto

Nelle vicinanze

Trasporto pubblico Trasporto pubblico
San Sebastiano (Abate)
San Sebastiano (Abate)
490 m
San Sebastiano (Gilardini)
San Sebastiano (Gilardini)
900 m
Ricariche auto elettriche Ricariche auto elettriche
San Sebastiano da Po Agnelli | EnelX
2,3 Km
Farmacia Farmacia
Farmacia
2,4 Km
Farmacia Sant'Anna
2,8 Km
Supermercati Supermercati
Supermercati
2,8 Km
Ristoranti Ristoranti
TRATTORIA DELLA VILLA
1,6 Km
Agriturismo Le Milane
1,7 Km
La bottega della pizza
2,3 Km
Tre colombe
2,3 Km
Mostra tutto

Caratteristiche

Rif.:
61128740
Piano:
Su più livelli di 2
Totale piani:
2
Box:
1
Balconi:
1
Terrazzi:
1
Mostra tutto
Prezzo Prezzo
€ 119.000
Rata mutuo Rata mutuo
€ 549 / mese
Spese annue Spese annue
€ 0
Proponi il tuo prezzoProponi il tuo prezzo

Classe Energetica

E
E
E
E
E
E
E
E
E
EP globale non rinnovabile:
102.21 kW h/m² anno
EP globale rinnovabile:
0.99 kW h/m² anno
EP invernale del fabbricato:
EP estiva del fabbricato:
Anno di costruzione:
1967
Riscaldamento:
Autonomo
Tipo impianto:
A radiatori
Tipo alimentazione:
GPL

Ti interessa visionare l'immobile?

Fissa un appuntamento  Fissa un appuntamento

Richiedi informazioni

* Questi campi sono obbligatori

Calcola il tuo mutuo

Semplice e senza impegno
Anticipo

( % )
Mutuo

( % )

pochi semplici passi

inserisci i tuoi dati
Questionario completato
Grazie per aver richiesto un appuntamento senza impegno con un nostro Consulente del Credito e Assicurativo.

Hai inserito correttamente tutti i dati necessari e a breve riceverai una e-mail con un link da convalidare per inviare i tuoi dati.
Affiliato
Studio Emmea Sas
Via Torino, 21 10090 San Raffaele Cimena (TO)

Il nostro staff


  • Diego Buscieti
    Affiliato

  • Diego Bongiovanni
    Affiliato

  • Nicholas Farris
    Responsabile

  • Elisa Pitruzzella
    Coordinatrice
Via Torino, 21 10090 San Raffaele Cimena (TO)
Zona: San Raffaele Cimena - Castagneto Po - San Sebastiano da Po - Casalborgone - Rivalba - Cinzano
Mostra su mappa
Orari: Lun-Ven 09.00/12.30 - 14.30/20.00 Sab 09.00/12.30 - 14.30/19.00
Affiliato
Studio Emmea Sas
Via Torino, 21 10090 San Raffaele Cimena (TO)

2025 Tecnocasa Franchising S.p.A. - P. IVA 08365160152 - Via Monte Bianco 60/A 20089 Rozzano (MI). Ogni agenzia ha un proprio titolare ed è autonoma. Privacy policy | Policy utilizzo | Cookie policy