Villa a schiera in vendita

San Raffaele Cimena, Via Dei Soliti
€ 350.000
6 locali 6 locali
170 Mq 170 Mq
3 bagni 3 bagni

Villa a schiera in vendita

San Raffaele Cimena, Via Dei Soliti

Descrizione annuncio

Nella collina di San Raffaele Alto, zona Raccone, presentiamo una villa indipendente su tre lati, priva di spese di gestione condominiali, sviluppata su tre livelli fuori terra e pensata per chi è alla ricerca di spazi ampi avente una buona funzionalità e privacy.

Il Comune, nella parte bassa, offre servizi autobus di linea GTT, scuole dall'asilo fino alle medie compreso di centro estivo, market, cartoleria e si ha un'ottima vicinanza da Torino e Chivasso.

La casa riserva un ingresso privato su un'ampia area verde che circonda i tre lati del fabbricato, che non impedisce di effettuare manovra con la propria autovettura per immettersi nel box auto.

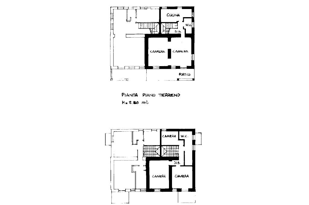
L'ingresso principale è preceduto da un atrio verandato che congiunge il salone doppio con camino a legna. La cucina, che è separata dalla zona soggiorno da un disimpegno dove si trova un bagno di servizio, dispone di una sua veranda.

Il piano superiore ospita tre camere da letto e un bagno completo di vasca e doccia con balcone. Una delle camere da letto dispone di un terrazzo privato che affaccia sul giardino con vista collinare. Il sottotetto, accessoriato di bagno con box doccia, è mansardato ed è collegato internamente da scala, il quale può essere adibito a studio o zona hobby.

La proprietà comprende un'autorimessa di 40 metri quadrati con lavanderia, cantina e ulteriore box auto di 60 metri quadri, il quale può essere idealizzato per un locale taverna esterno adiacente alla casa.

Esternamente, l'abitazione offre un'area verde di giardino delimitato da siepe e accessoriato di barbecue e forno in muratura, mentre il tetto del box può essere trasformato in zona solarium o in un terrazzo.

Infine, la proprietà si conclude con 3.000 metri quadrati di terreno completamente recintato, il quale dispone di un ulteriore accesso esterno, comodo per quando bisogna effettuare manutenzione con mezzi.

Il riscaldamento è autonomo a GPL con termosifoni in ghisa e i serramenti sono in legno con il doppio vetro.

La villa presentata unisce indipendenza, spazi generosi sia interni che esterni, avente una buona esposizione alla luce solare che favorisce l'installazione di impianto fotovoltaico per decrementare i consumi.

Mostra tutto

Nelle vicinanze

Trasporto pubblico Trasporto pubblico
Raccone
Raccone
80 m
Raccone (Cascina Barbasso)
Raccone (Cascina Barbasso)
310 m
Ricariche auto elettriche Ricariche auto elettriche
San Raffaele Cimena Italia | EnelX
2,3 Km
Farmacia Farmacia
Farmacia Sant'Anna
2,3 Km
Farmacia
2,4 Km
Supermercati Supermercati
Supermercati
2,3 Km
Mostra tutto

Caratteristiche

Rif.:
61112439
Piano:
Su più livelli di 3
Totale piani:
3
Box:
2
Balconi:
1
Terrazzi:
1
Mostra tutto
Prezzo Prezzo
€ 350.000
Rata mutuo Rata mutuo
€ 1.613 / mese
Spese annue Spese annue
€ 0
Proponi il tuo prezzoProponi il tuo prezzo

Classe Energetica

E
E
E
E
E
E
E
E
E
EP globale non rinnovabile:
0.25 kW h/m² anno
EP globale rinnovabile:
82.63 kW h/m² anno
EP invernale del fabbricato:
EP estiva del fabbricato:
Anno di costruzione:
1990
Riscaldamento:
Autonomo
Tipo impianto:
A radiatori
Tipo alimentazione:
GPL

Ti interessa visionare l'immobile?

Fissa un appuntamento  Fissa un appuntamento

Richiedi informazioni

* Questi campi sono obbligatori

Calcola il tuo mutuo

Semplice e senza impegno
Anticipo

( % )
Mutuo

( % )

pochi semplici passi

inserisci i tuoi dati
Questionario completato
Grazie per aver richiesto un appuntamento senza impegno con un nostro Consulente del Credito e Assicurativo.

Hai inserito correttamente tutti i dati necessari e a breve riceverai una e-mail con un link da convalidare per inviare i tuoi dati.
Affiliato
Studio Emmea Sas
Via Torino, 21 10090 San Raffaele Cimena (TO)

Il nostro staff


  • Diego Buscieti
    Affiliato

  • Diego Bongiovanni
    Affiliato

  • Nicholas Farris
    Responsabile

  • Elisa Pitruzzella
    Coordinatrice
Via Torino, 21 10090 San Raffaele Cimena (TO)
Zona: San Raffaele Cimena - Castagneto Po - San Sebastiano da Po - Casalborgone - Rivalba - Cinzano
Mostra su mappa
Orari: Lun-Ven 09.00/12.30 - 14.30/20.00 Sab 09.00/12.30 - 14.30/19.00
Affiliato
Studio Emmea Sas
Via Torino, 21 10090 San Raffaele Cimena (TO)

2025 Tecnocasa Franchising S.p.A. - P. IVA 08365160152 - Via Monte Bianco 60/A 20089 Rozzano (MI). Ogni agenzia ha un proprio titolare ed è autonoma. Privacy policy | Policy utilizzo | Cookie policy