Casa semindipendente in vendita

Cavagnolo, Via Genevrea
€ 195.000
5 locali 5 locali
275 Mq 275 Mq
2 bagni 2 bagni

Casa semindipendente in vendita

Cavagnolo, Via Genevrea

Descrizione annuncio

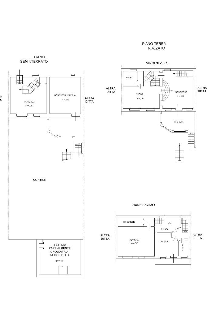
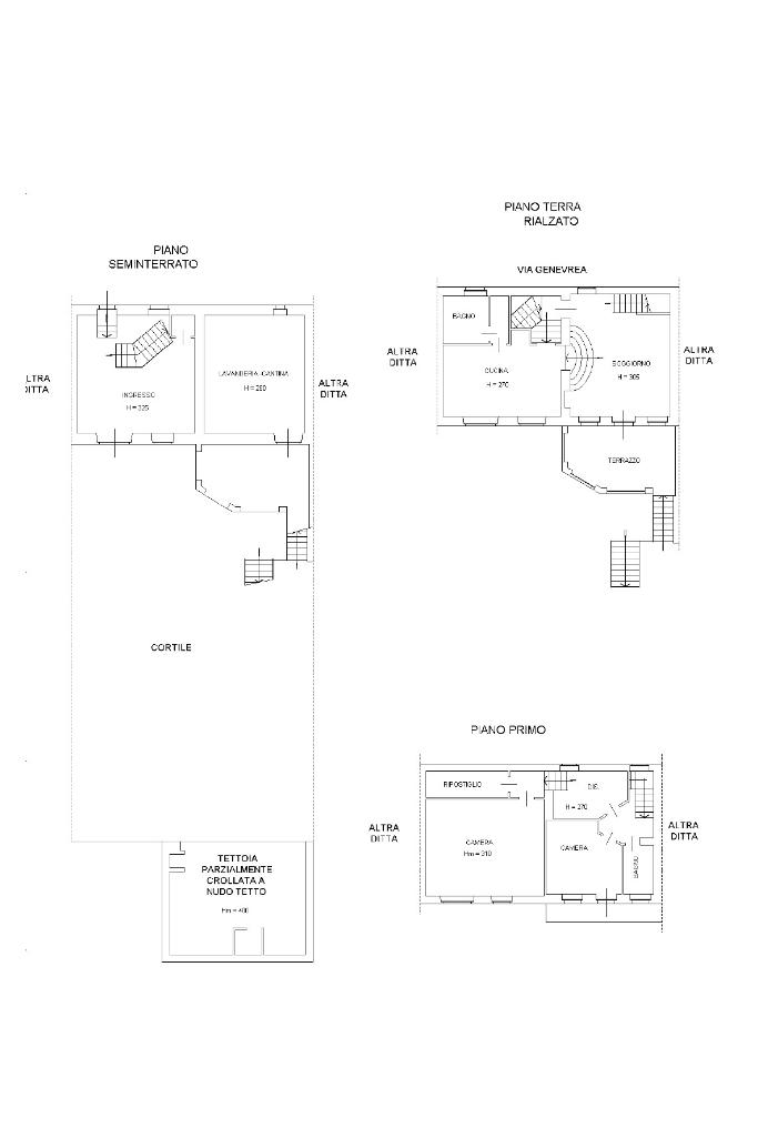
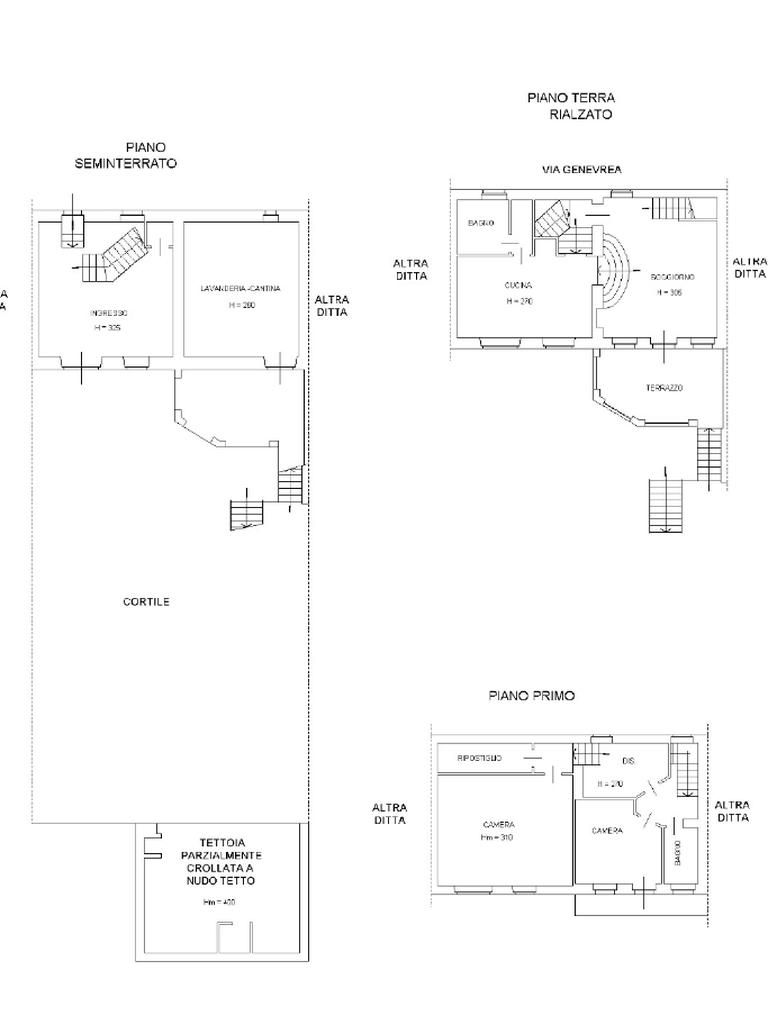
Non distante dal centro paese, casa semindipendente disposta su più livelli ognuno servito da ascensore, ideale per chi cerca spazio e versatilità. La struttura conserva il fascino delle case d'epoca, con dettagli architettonici che raccontano la storia del luogo. Gli spazi interni sono generosi e ben distribuiti, permettendo di creare zone giorno e notte funzionali e accoglienti. La posizione strategica consente di godere della tranquillità del contesto circostante, pur rimanendo a breve distanza dai principali servizi del paese. Questa proprietà rappresenta un'opportunità unica per chi desidera vivere in un ambiente che combina tradizione e potenzialità di rinnovamento.

Al piano terra è presente un comodo ingresso dotato di una comoda scala interna che serve ogni piano dell'immobile

Il primo piano è composto da un ampio soggiorno luminoso, una cucina abitabile, un antibagno con bagno annesso.

Al secondo piano si trova la zona notte caratterizzata da un bagno con doccia e due camere da letto di generosa metratura

A completamento della proprietà un ampio giardino privato.

Mostra tutto

Nelle vicinanze

Trasporto pubblico Trasporto pubblico
ex Stazione di Cavagnolo-Brusasco
ex Stazione di Cavagnolo-Brusasco
460 m
Cavagnolo (Piana di Cavagnolo)
Cavagnolo (Piana di Cavagnolo)
350 m
Cavagnolo (v. Ca' D'Ostino)
Cavagnolo (v. Ca' D'Ostino)
620 m
Scuole Scuole
Scuola elementare e materna
750 m
Farmacia Farmacia
Farmacia Spanò
820 m
Farmacia Bellone
1,0 Km
Supermercati Supermercati
Crai
460 m
Borello Market
630 m
Ristoranti Ristoranti
Agriturismo Parva Domus
1,2 Km
Locanda del Biru
2,5 Km
Mostra tutto

Caratteristiche

Rif.:
61188407
Piano:
3 di 3 con ascensore (Piano su più livelli)
Posti auto:
1
Balconi:
1
Terrazzi:
1
Camere da letto:
2
Mostra tutto
Prezzo Prezzo
€ 195.000
Rata mutuo Rata mutuo
€ 922 / mese
Spese annue Spese annue
€ 0
Proponi il tuo prezzoProponi il tuo prezzo

Classe Energetica

F
F
F
F
F
F
F
F
F
EP globale non rinnovabile:
225.20 kW h/m² anno
EP globale rinnovabile:
0.65 kW h/m² anno
EP invernale del fabbricato:
EP estiva del fabbricato:
Anno di costruzione:
1900
Riscaldamento:
Autonomo
Tipo impianto:
A radiatori
Tipo alimentazione:
Metano

Ti interessa visionare l'immobile?

Fissa un appuntamento  Fissa un appuntamento

Richiedi informazioni

Clicca su Leggi per aprire l'informativa
* Questi campi sono obbligatori

Calcola il tuo mutuo

Semplice e senza impegno
Anticipo

( % )
Mutuo

( % )

pochi semplici passi

inserisci i tuoi dati
Questionario completato
Grazie per aver richiesto un appuntamento senza impegno con un nostro Consulente del Credito e Assicurativo.

Hai inserito correttamente tutti i dati necessari e a breve riceverai una e-mail con un link da convalidare per inviare i tuoi dati.
Affiliato
Studio Emmea Sas
Via Torino, 21 10090 San Raffaele Cimena (TO)

Il nostro staff


  • Diego Buscieti
    Affiliato

  • Diego Bongiovanni
    Affiliato

  • Desirè Fogli
    Collaboratrice
Via Torino, 21 10090 San Raffaele Cimena (TO)
Zona: San Raffaele Cimena - Castagneto Po - San Sebastiano da Po - Casalborgone - Rivalba - Cinzano
Mostra su mappa
Orari: Lun-Ven 09.00/12.30 - 14.30/20.00 Sab 09.00/12.30 - 14.30/19.00
Affiliato
Studio Emmea Sas
Via Torino, 21 10090 San Raffaele Cimena (TO)

2026 Tecnocasa Franchising S.p.A. - P. IVA 08365160152 - Via Monte Bianco 60/A 20089 Rozzano (MI). Ogni agenzia ha un proprio titolare ed è autonoma. Privacy policy | Policy utilizzo | Cookie policy