Casa semindipendente in vendita

Casalborgone, Via Borganino - Borganino
€ 89.000
6 locali 6 locali
160 Mq 160 Mq
2 bagni 2 bagni

Casa semindipendente in vendita

Casalborgone, Via Borganino - Borganino

Descrizione annuncio

Nella borgata di Strada Borganino, dove regna il silenzio e la natura della collina di Casalborgone, presentiamo una soluzione abitativa libera su tre lati con appezzamento di terreno di circa 650 metri quadrati non adiacenti e tettoia con giardino completamente recintato.

Il fabbricato, allacciato alla rete fognaria pubblica, è dotato di un impianto di pannelli fotovoltaici da 4,5kW e di un sistema di riscaldamento dei radiatori mediante termocucina, alternative dispensabili per abbattere i consumi.

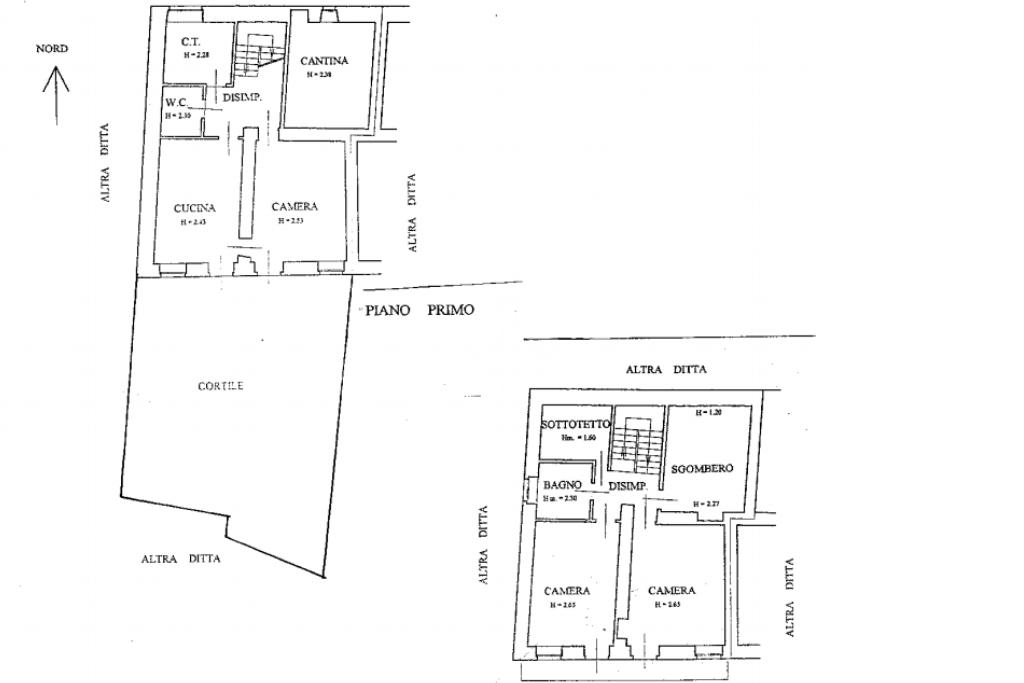
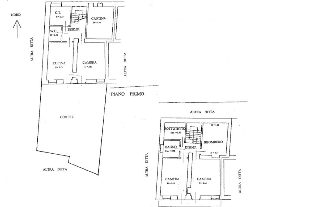
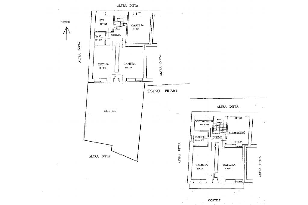
La casa, posizionata a 1,5 km dal centro paese, dove si trovano tutti i servizi offerti dal Comune, come: linea GTT, scuole asilo, elementari e medie, bar, ristoranti e market, è disposta su due livelli fuori terra con cortile privato.

I locali dedicati alla zona giorno, come la cucina abitabile e il soggiorno, sono entrambi muniti di una portafinestra che collega l'area cortilizia. I locali appena menzionati sono ulteriormente separati da un disimpegno comunicante con i vani cantina, locale lavanderia e un bagno accessoriato di box doccia.

Il piano superiore è raggiungibile tramite scala interna, dove si raggruppa la zona notte. Tale livello comprende due camere da letto di generosa metratura con balcone comunicante, un locale sgombero ideale per ricreare uno studio, un locale sottotetto e un bagno con vasca.

La proprietà, esternamente alla parte abitativa del fabbricato, viene completata da una tettoia, che può ospitare fino a tre autovetture. Inoltre, è presente un giardino già recintato di una metratura complessiva di circa 650 metri quadrati dislocato dall'immobile.

La soluzione proposta è indicata per qualsiasi famiglia sia alla ricerca della tranquillità e di un luogo immerso nella natura con l'intenzione di proseguire nel completare il sistema di impianto energetico al fine di rendere efficienti i consumi.

Mostra tutto

Nelle vicinanze

Trasporto pubblico Trasporto pubblico
Casalborgone (Scuole)
Casalborgone (Scuole)
1,1 Km
Casalborgone (Val Frascarina)
Casalborgone (Val Frascarina)
1,2 Km
Farmacia Farmacia
Farmacia
1,3 Km
Supermercati Supermercati
Supermercati
1,4 Km
Negozi Negozi
Negozi
1,3 Km
Bar Bar
Bar
1,3 Km
Ristoranti Ristoranti
Ristoranti
1,3 Km
Tre colombe
2,8 Km
Agriturismo Cascina Groppeto
2,8 Km
Mostra tutto

Caratteristiche

Rif.:
61097085
Piano:
Su più livelli di 2
Totale piani:
2
Balconi:
1
Camere da letto:
2
Arredamento:
Assente
Mostra tutto
Prezzo Prezzo
€ 89.000
Rata mutuo Rata mutuo
€ 420 / mese
Spese annue Spese annue
€ 0
Proponi il tuo prezzoProponi il tuo prezzo

Classe Energetica

F
F
F
F
F
F
F
F
F
EP globale non rinnovabile:
224.38 kW h/m² anno
EP globale rinnovabile:
1.32 kW h/m² anno
EP invernale del fabbricato:
EP estiva del fabbricato:
Anno di costruzione:
1967
Riscaldamento:
Autonomo
Tipo impianto:
A radiatori
Tipo alimentazione:
Altro

Ti interessa visionare l'immobile?

Fissa un appuntamento  Fissa un appuntamento

Richiedi informazioni

Clicca su Leggi per aprire l'informativa
* Questi campi sono obbligatori

Calcola il tuo mutuo

Semplice e senza impegno
Anticipo

( % )
Mutuo

( % )

pochi semplici passi

inserisci i tuoi dati
Questionario completato
Grazie per aver richiesto un appuntamento senza impegno con un nostro Consulente del Credito e Assicurativo.

Hai inserito correttamente tutti i dati necessari e a breve riceverai una e-mail con un link da convalidare per inviare i tuoi dati.
Affiliato
Studio Emmea Sas
Via Torino, 21 10090 San Raffaele Cimena (TO)

Il nostro staff


  • Diego Buscieti
    Affiliato

  • Diego Bongiovanni
    Affiliato

  • Nicholas Farris
    Responsabile

  • Elisa Pitruzzella
    Coordinatrice
Via Torino, 21 10090 San Raffaele Cimena (TO)
Zona: San Raffaele Cimena - Castagneto Po - San Sebastiano da Po - Casalborgone - Rivalba - Cinzano
Mostra su mappa
Orari: Lun-Ven 09.00/12.30 - 14.30/20.00 Sab 09.00/12.30 - 14.30/19.00
Affiliato
Studio Emmea Sas
Via Torino, 21 10090 San Raffaele Cimena (TO)

2025 Tecnocasa Franchising S.p.A. - P. IVA 08365160152 - Via Monte Bianco 60/A 20089 Rozzano (MI). Ogni agenzia ha un proprio titolare ed è autonoma. Privacy policy | Policy utilizzo | Cookie policy